3/50 Dorset Square, Boronia
overview
-
1P12748
-
Retail
-
For Sale
-
170 sqm
external links
Description
RARE RETAIL OPPORTUNITY IN BORONIA MALL
A remarkably rare opportunity brought to you by First National JXRE, this exceptional retail property offers a prime location and an abundance of potential for savvy investors or business owners looking to establish themselves in a thriving community.
The property's prominent position within the bustling Boronia Mall, ensures excellent exposure and visibility within The Mall, attracting a steady flow of foot traffic and potential customers. With its close proximity to other retail outlets, cafes and transport offering convenience and accessibility for both customers and employees.
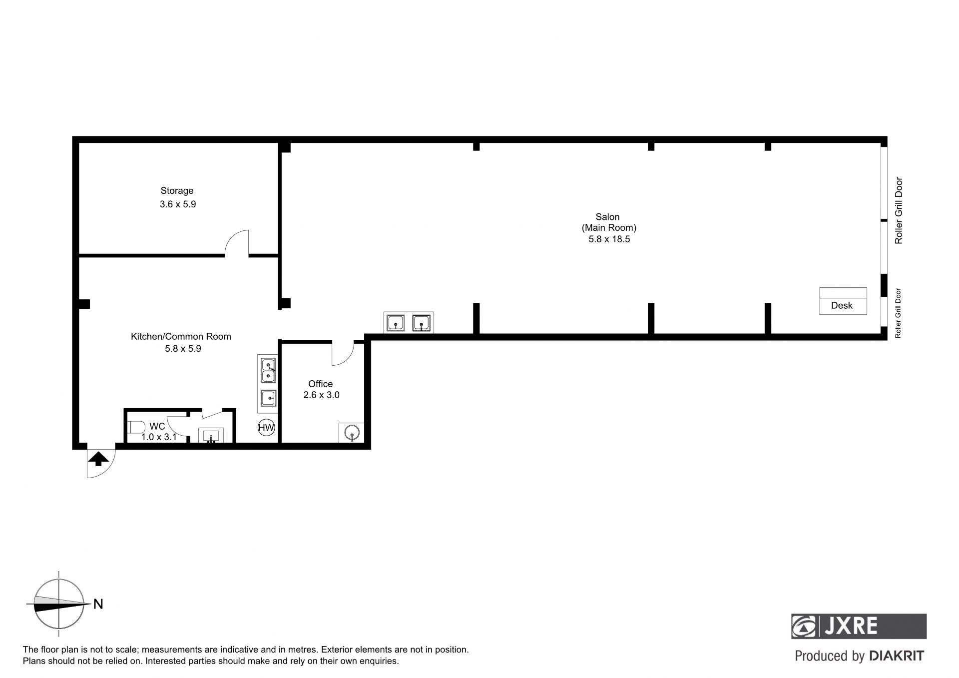
In addition to its strategic location, the premises is impeccably appointed and furnished for operation as a salon, whilst its large main room, separate office, kitchenette, powder room and store room make it ideal for alternative use as a retail/fashion outlet or office space (STCA).
Key Features:
- Vacant Possession
- Fully furnished for use as a salon with sinks and front desk
- Main floor measuring an impressive 5.8m x 18.5m
- Private office space (2.6m x 3m)
- Kitchenette/common room (5.8 x 5.9m)
- Extensive storage space
- Staff powder room
- Secure roller grill door
- Ducted heating and air conditioning
- Excellent exposure to foot traffic
*Photo ID required at all First National JXRE open for inspections and auctions. First National JXRE may refuse to provide further information on the property should you prefer not to disclose your full contact information including phone number.
Disclaimer: We have in preparing this document used our best endeavours to ensure that the information contained in this document is true and accurate, but accept no responsibility and disclaim all liability in respect to any errors, omissions, inaccuracies or misstatements in this document. Prospect purchasers should make their own enquiries to verify the information
contained in this document. Purchasers should make their own enquiries and refer to the due diligence check-list provided by Consumer Affairs. Click on the link for a copy of the due diligence check-list from Consumer Affairs.
http://www.consumer.vic.gov.au/duediligencechecklist
The property's prominent position within the bustling Boronia Mall, ensures excellent exposure and visibility within The Mall, attracting a steady flow of foot traffic and potential customers. With its close proximity to other retail outlets, cafes and transport offering convenience and accessibility for both customers and employees.
In addition to its strategic location, the premises is impeccably appointed and furnished for operation as a salon, whilst its large main room, separate office, kitchenette, powder room and store room make it ideal for alternative use as a retail/fashion outlet or office space (STCA).
Key Features:
- Vacant Possession
- Fully furnished for use as a salon with sinks and front desk
- Main floor measuring an impressive 5.8m x 18.5m
- Private office space (2.6m x 3m)
- Kitchenette/common room (5.8 x 5.9m)
- Extensive storage space
- Staff powder room
- Secure roller grill door
- Ducted heating and air conditioning
- Excellent exposure to foot traffic
*Photo ID required at all First National JXRE open for inspections and auctions. First National JXRE may refuse to provide further information on the property should you prefer not to disclose your full contact information including phone number.
Disclaimer: We have in preparing this document used our best endeavours to ensure that the information contained in this document is true and accurate, but accept no responsibility and disclaim all liability in respect to any errors, omissions, inaccuracies or misstatements in this document. Prospect purchasers should make their own enquiries to verify the information
contained in this document. Purchasers should make their own enquiries and refer to the due diligence check-list provided by Consumer Affairs. Click on the link for a copy of the due diligence check-list from Consumer Affairs.
http://www.consumer.vic.gov.au/duediligencechecklist
Features
- Close to Schools
- Close to Shops
- Close to Transport